GLENVIEW

GLENVIEW
FORMER HOUSE

The former house has been demolished and new construction of a Multiplex is underway.

Recent changes in legislation allow greater flexibility in construction of Multiplex and Laneway homes in Toronto.

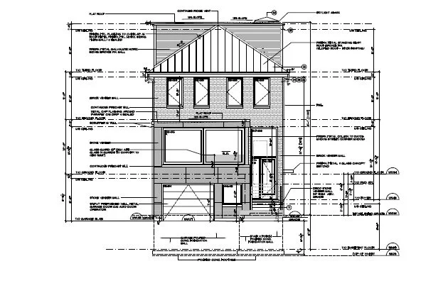
GLENVIEW DRAWINGS

The new home features two independent units with separate entrances and significantly increased square footage overall.

GLENVIEW
DEMOLITION AND NEW CONSTRUCTION

STATUS
Under Construction

LOCATION
Toronto

ARCHITECTURAL DESIGN
Lynn Appleby

ARCHITECTURAL DRAWINGS
Enzo Loccisano, ARCH.DWG Inc.

BUILDER
Alberto Ferreira, kbkcontracting